

 |
| 20th Judging Results (Page 12/15) |
|
GT86
|
JUL 23, 09:36 PM
|
|
| | | quote | Originally posted by yello86se: agian not publiclly on the froum, but rather via emails or PMs or on the phone with me. This has nothign to do with anyone at the show or anyone on the board here. |
|
Not to sound like an @ss, but why post about it then? edit: didn't get the whole quote [This message has been edited by GT86 (edited 07-23-2003).]
|
|
|
PURPLE REIGN
|
JUL 23, 09:42 PM
|
|
I dont think you get it I can drop it, forget it, whatever, the reason it has'nt by now is all the uninformed narrow minded people who have jumped my **** thinking they have all the answers. The biggest thing I was looking for is an apology publically from Boob er.. Bob Holtz saying " I'm sorry, I screwed up & made a bad choice and the rules discussed in metings were not printed publically" .........and my $70 registration. END OF STORY !!!!!!!!!!
|
|
|
Archie
|
JUL 24, 12:03 AM
|
|
|
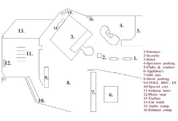
I borrowed this image from the CFOGi web site http://www.cfogi.org/location.htm I thought it was clear that you would have to drive your car thru the Judging lanes. See #11 Archie
|
|
|
litespd
|
JUL 24, 12:07 AM
|
|
|
I'm surprised that no one has piped up and mentioned the fact that the FOCOA National show in Osage Beach last year had judging lanes. However, that is really a moot point. Shaun, for what it's worth, Bob Holtz put out a list of classes when the 20th anniversary was first announced. The classes he had set up were totally ridiculous. Most people would have been put in classes they didn't belong in. When I PM'd Bob about it, he got VERY nasty with me, and even emailed me off list and basically told me, in not so many words, to go to hell...this is the way the classes were going to be set up, and there were no ifs, ands, or buts about it. My original PM to him was basically just pointing out that there were a LOT of Fiero people, not just me, that were going to get screwed over with the classes the way he had them set up, and asked if he would look at them again, and maybe reconsider a few. As I said above, he told me that there were going to be NO changes, and if I didn't like it, I could stick it where the sun didn't shine. My letter was not an antagonistic one...I was merely pointing out a flaw in the system. When I got my "nastygram" (tm), I forwarded it on to Chuck, and I think Dale, too. They immediately replied, and asked me not to give up on them. Shortly after that, the classes changed, and Holtz sent me another email, asking me if I "was happy now". I believe Chuck, Dale, and Fred Bartemeyer stepped in and "rewrote" the classes. I replied to Holtz that I was...I felt that the new classes covered more of the cross section of Fieros that were out there. Of course....I never got an apology from him for the nasty email he wrote me. What I'm trying to say is...if you're waiting for an apology from Holtz...you're going to be waiting for a long time.. 
|
|
|
PURPLE REIGN
|
JUL 24, 12:23 AM
|
|
|
Archie........this will be the LAST time I repeat.......that still does not prove or say "you have to DRIVE to and through the judging lanes to even be in the show " END OF IT !!!!!!!!!!!!!!!!!!!! Litespd That's an interesting piece of information....................... I wonder how many other situations there are like this. Thanks Litespd.........I wont hold my breath...........it's a real shame what some others have escalated this to I'm going to bed now......... 
|
|
|
Xantavar
|
JUL 24, 12:56 AM
|
|
|
|
Gokart Mozart
|
JUL 24, 05:22 PM
|
|
|
I don't appreciate the fact I received a pm about this subject. I'm not even a member in any club, let alone an official in this show. I'm sure everyone can understand the frustrations with the confusions, but enough already! Let the volunteers who were in charge have a moment to get back to their normal lives, get all the facts together and come up with a solution. Seeing that everyone is now miles away from each other it won't happen overnight. BE PATIENT and CHILL!!! It's only been 5 days!!
|
|
|
Nebiros88
|
JUL 24, 05:45 PM
|
|
|
Purple... I'm very sorry to hear about your problems and i do feel you got the $hit end of the stick on being judged... did you happen to have your car on a trailor yet? if you had it on a trailor after the engine trouble why not drive it through the lanes pulling it with you? (just a thought not meant to be a flame) Yellow... no offense bro, i absolutely love your car but your attitude about this and making it a whole public ordeal hasnt exactly help peoples opinion of you... now look i do realise you got judged on a low-point system right? your beef is being misjudged and the rules not being clearly stated before hand right? well in any point event it is an easy fix if they put it on the wrong scale high scale 0-1-2-3-4-5-6-7-8-9-10 low scale 10-9-8-7-6-5-4-3-2-1-0 so if they pointed you a 0....it is a 10 on the other scale...you said you were pissed because you didnt care about the award right? all you wanted was to be rated to know what you needed to improve on.... well if this isnt about an award then why the he| | are you bit<hing? you can easily find out your real scores on the higher scale... I do realize that the judging of it was a total mess... and i do think the judges should have walked the court especially for those with low mileage cars... I do realize the mistakes of the judges and the disorganization of the event led to some upset people but the best thing to do is to help organize the next one and do all we can to make sure it doesnt happen again...not make a big huge public scene... no more needs to be said... you guys have cluttered the forum with too many threads about simple nonsence that really doesnt matter... none of this should have been public... if you had beef... work it out quietly... no flames intended and i wish you all the best of luck and hope i can meet up with some of you next event ------------------
|
|
|
Songman
|
JUL 24, 05:56 PM
|
|
|
At the risk of being called names again and certainly being told I don't know what I am talking about... If you compare this to what happens in another car sport... Let's say Jeff Gordon... of better yet, some NASCAR driver that only has a single car for his team... During practice on Saturday he crashes his car and can't start the race on Sunday... How many points does NASCAR give him toward the Winston Cup? If you look at it like this, while it is a tragedy that this team spent all that time and money getting there and this was their one big chance to show how good they were... the fact is that if that car doesn't start on Sunday, it is out of the running... I have to agree with the person that said that racing and such maybe should come AFTER the judging. If it comes beforehand, it is owner's own risk. Even if there is no judging lane, I think show cars should at least have to run. One set of rules should apply to everyone in a car show. If the rules say drive through, then everyone should have to drive through. No exceptions, no matter how your car breaks. Intent is not the issue. What about the guy who had a wreck on the way to a show? Should his car still be judged on what it was before the wreck? Extreme examples but the end result is the same. I know you are let down, Shaun, and I agree with that... And you have been much nicer about it in these later posts... It's just luck of the draw, man... Cars that are raced break. Everyone knows that possibility when they enter the track... [This message has been edited by Songman (edited 07-24-2003).]
|
|
|
jstricker
|
JUL 24, 06:52 PM
|
|
|
Songman, The timing of the various events WAS considered. But you have to remember that we are at the mercy of other schedules. For instance, Waterford had an SCCA race that weekend. The dragstrip, IIRC, was also booked on the weekend. Most people wouldn't be able to participate on Sunday as they needed to head home. Many people that wanted to show made it just FOR the show on Saturday. I think you see the problem here. When we rent a track or strip, we have to work around their schedule and most people want to show Saturday for logistical reasons. It's simply a matter of not being able to fit all the pegs in the right holes at the times we'd like. We need a week with 3 Saturdays in a row!!  This was talked about a lot months before the event, and then again at our board meeting Sunday morning and, honestly, the schedule was pretty much the way it had to be given all the other things going on at the time. I'm with you on what I'd LIKE to see done, unfortunately, real life sometimes slaps us right in the face with what we HAVE to do. John Stricker Kit Car/Re-Body Director CFOGi | | | quote | | Originally posted by Songman: At the risk of being called names again and certainly being told I don't know what I am talking about... If you compare this to what happens in another car sport... Let's say Jeff Gordon... of better yet, some NASCAR driver that only has a single car for his team... During practice on Saturday he crashes his car and can't start the race on Sunday... How many points does NASCAR give him toward the Winston Cup? If you look at it like this, while it is a tragedy that this team spent all that time and money getting there and this was their one big chance to show how good they were... the fact is that if that car doesn't start on Sunday, it is out of the running... I have to agree with the person that said that racing and such maybe should come AFTER the judging. If it comes beforehand, it is owner's own risk. Even if there is no judging lane, I think show cars should at least have to run. One set of rules should apply to everyone in a car show. If the rules say drive through, then everyone should have to drive through. No exceptions, no matter how your car breaks. Intent is not the issue. What about the guy who had a wreck on the way to a show? Should his car still be judged on what it was before the wreck? Extreme examples but the end result is the same. I know you are let down, Shaun, and I agree with that... And you have been much nicer about it in these later posts... It's just luck of the draw, man... Cars that are raced break. Everyone knows that possibility when they enter the track... [This message has been edited by Songman (edited 07-24-2003).] |
|
|
|

 |
|