

 |
| 88 GT Heater Fuse Blown (Page 2/4) |
|
Pyrostatic
|
SEP 27, 01:05 PM
|
|


Thanks for the feedback, the heater resistor seems to look good to me.
Any other ideas?
|
|
|
Rexgirl
|
SEP 28, 03:52 PM
|
|
|
Possibly a shorted Mode Door Actuator (motor) ?
|
|
|
buddycraigg
|
SEP 28, 08:00 PM
|
|
| quote | Originally posted by Rexgirl:
Possibly a shorted Mode Door Actuator (motor) ? |
|
Yikes, 25 amps through one of those motors is a lot.
Rexgirl Thanks for posting the schematic. ( gave you a +)
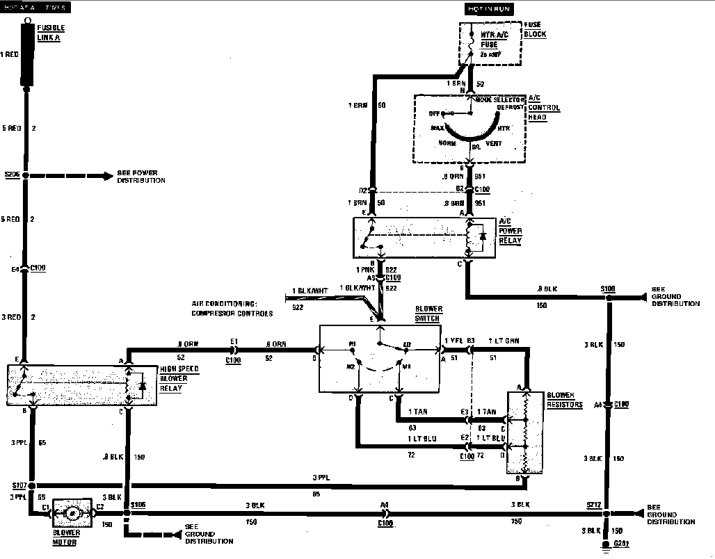
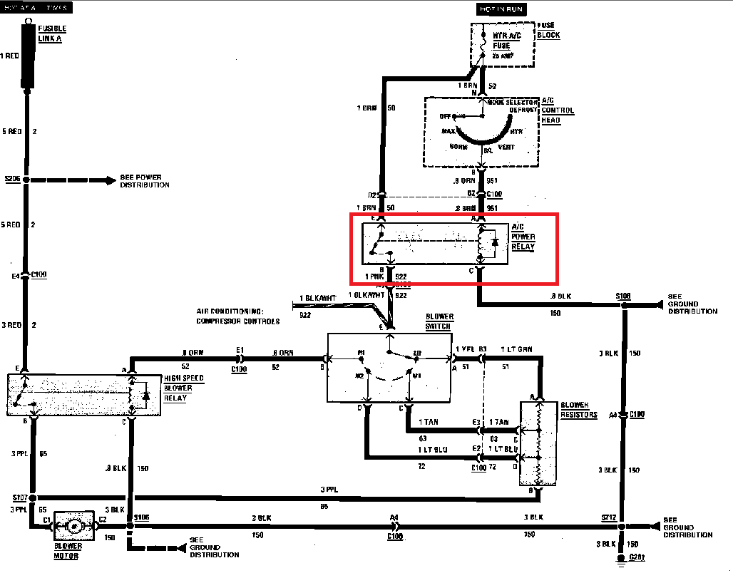
Pyrostatic I do not remember a relay called "AC power relay" Look at the picture that IMSA GT posted. The relay with the yellow arrow going to it. Does it have brown, brown, pink, black wires going to it?
|
|
|
theogre
|
SEP 29, 10:03 AM
|
|
Full drawing showing cutoff right side...
 Power Relay is why Blower Only shut off when Control Head is Off along w/ rest of AC.
May need this too for V6 but skipping engine blower because 88 deleted that.
 | | CLICK FOR FULL SIZE |
Likely motor have problem even if can run @ high speed. Can be motor dying to wires and other parts cause low volts.
Motor w/ bad wiring gets low volts and can pop a fuse when you're lucky. See my Cave, Electric Motors Motor dying can cause high draw @ low speeds and pop a fuse. Blower at High speed bypass low speed parts and doesn't have a fuse. Dying motor still draws more power and a problem to rest of car.
If car has Low Volts problems then likely other things have problems too. Example: Rad Fan is basically heater blower on High and doesn't have a fuse for the motor. Do Not Trust Volt meter in the dash.
Get a "small" meter w/ DC Amp Clamp. If you have whatever blowing fuses or Battery Leaches this will find them w/o cutting wires etc. Example: https://www.amazon.com/Uni-...itance/dp/B00O1Q2HOQ
If not a relay, motor, or other things w/ plugs... Might what a fuse blinker. aka a "short tester automotive" example: https://www.amazon.com/Tool...Tester/dp/B000RFLR0U Red part is blinker can that load up a short w/o burning fuses etc. Can get all electronic ones too. take a blow fuse and cut plastic some to use it to connect the blinker parallel to the dead fuse ------------------ Dr. Ian Malcolm: Yeah, but your scientists were so preoccupied with whether or not they could, they didn't stop to think if they should. (Jurassic Park)
The Ogre's Fiero Cave
|
|
|
Rexgirl
|
SEP 29, 03:41 PM
|
|
It appears this fuse also feeds the air distribution motors, and one motor may be shorted to ground.
|
|
|
theogre
|
SEP 29, 06:48 PM
|
|
|
|
Rexgirl
|
SEP 29, 07:27 PM
|
|
|
Yes, unlikely. What do you suggest he do next Mr. Dave? I was thinking the OP might want to see if the blower runs on High as Buddy suggested, to check for its proper operation.
|
|
|
buddycraigg
|
SEP 29, 07:41 PM
|
|
I want to see if the fuse still blows with the AC power relay is disconnected. I want to rule out a short in the AC compressor control circuit.
I don't think it is a problem with the blower motor, cause the fusable link would have blown. You can disconnect the purple wire going to the blower as a test if you want.
|
|
|
Pyrostatic
|
SEP 30, 03:57 PM
|
|
Thank-you so much for looking into this guys. I really appreciate it.
I have a question: In this picture:

Is the relay I circled the one that is located in the back hatch beside the fuel pressure relay? Or are they two different relays?
The reason I ask is, I had an exhaust leak in the Y of the exhaust. It ended up melting a bunch of wires, especially the ones going to the "A/C Compressor Control Relay" and the "Fuel Pump Relay". I couldn't get the fuel pump relay to work right with the stock wiring after that, and ended up running a power line from the junction block to the fuel pressure relay with an inline fuse. I never hooked that A/C relay beside it back up as the A/C didn't work anyways. I didn't realize it could be important for running the heat, defrost, blower etc. (The heater and defrost did work for a while without the "A/C Compressor Control Relay" being hooked up.)
So... ya, is that relay circled in the picture the one beside the fuel pressure relay? If so, is there an easier way to fix my problem without completely restoring the A/C relay? Thank-you.
|
|
|
theogre
|
SEP 30, 07:15 PM
|
|
Both relays above are in the front... Notice some connection go thru C100 below next to Brake Booster.
Power Relay runs most of the system via pnk then blk/wht wires. If wires fried in back... then yes, likely still have problems there blowing fuses.
"best" is pull off ac/radio trim to access the control head to pull the plug on blower speed switch. Just pull that plug and still popping fuse then ISN'T a blower problem.
|
|

 |
|